
3D-Laserscanning
Entdecken Sie die Leistungsfähigkeit und Vielseitigkeit unserer hochmodernen Scanner für präzise 3D-Erfassung. Das Scannen von Bestandsgebäuden ist mittlerweile nicht mehr wegzudenken und ermöglicht ein Aufmaß in völlig neuen Dimensionen.
3D-Modellierung
Perfekt für Architekten, Ingenieure und Handwerker bieten unsere Scanner eine unschlagbare Kombination aus Geschwindigkeit und Detailgenauigkeit.
Komplexe Objekte und Gebäude werden gescannen und in beindruckende 3D-Modelle verwandelt.
Wir erstellen für Sie 3D Modelle sowie Schnitte und Volumenberechnungen in kürzester Zeit.



Laserscan in der Historie
Besonders bei historischen Gebäuden gibt es in den seltensten Fällen verlässliche Planunterlagen.
Hier können schnell und umfangreiche Bestandsdaten erfasst werden.
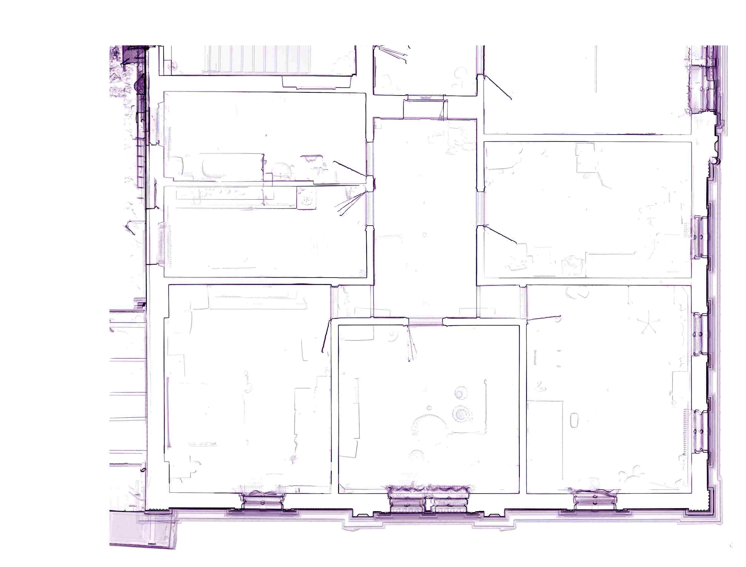
Punktwolke
In der fertigen Punktwolke lassen sich danach an beliebigen Stellen und in gewünschter Detailierung Schnitte, Grundrisse und Ansichten erstellen und somit ein zielgerichtetes Aufmaß.
Außerdem kann die Punktwolke auch von vielen weiteren Gewerken verwendet werden.
Starten Sie mit uns ein gemeinsames Projekt.
+49 (0) 7542 53950
info@ib-mk.de
+49 (0) 7542 5395 20






